This Home at Auction

Designed and Built by Northeast Students

View Home Auction Posters Building Construction Program

Auction Date: Saturday, June 6, 10 a.m.
Open House: Tuesday, May 26 and Thursday, May 28, 7-9 p.m.

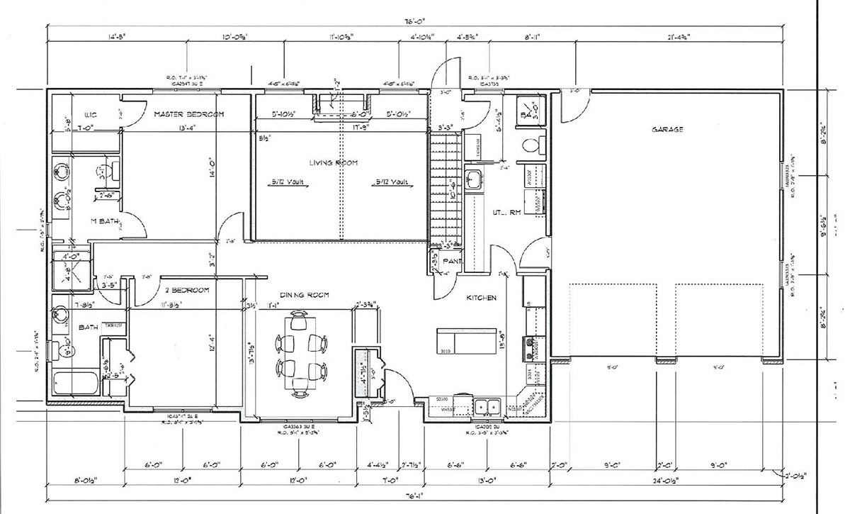
House #120035 | 1,622 SQ FT

Side exterior view of a single-story house with dark blue siding, white trim, multiple gabled rooflines, raised concrete foundation, and exterior stairs leading to an entry deck.

Black-and-white floor plan showing a single-story home layout with two bedrooms, two bathrooms, kitchen, dining room, living room, and attached two-car garage.

Special features in this open floor plan include:

  • Pre-painted LP smart siding
  • Asphalt shingles
  • R-21 sidewalls and R-60 attic cellulose insulation
  • Coffered and vaulted ceilings
  • Granite kitchen countertops
  • Ferche’ oak millwork stained to match the built-in custom cabinetry
  • Marvin casement windows
  • 2 bedroom, 2 full bath, 1 3/4 bath

Floor coverings are the responsibility of the homeowner. Home is designed to be moved at buyer’s expense to own lot. House includes all water, vent and waste lines extended to floor joist level for ease of hook-up. 2x6 exterior stud walls with cellulose insulation throughout. House meets or exceeds local and state building codes. All electrical conveniences installed in accordance with national electric and FHA code; circuits tested and connected to a 200 amp breaker panel. Northeast does not discriminate based upon any status protected by law or college policy. Please go to northeast.edu/nondiscrimination for details.


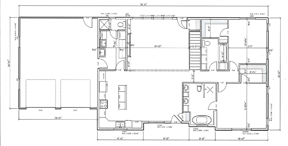
House #120036 | 1,628 SQ FT

Front exterior of a single-story modern house with gray siding, stone accents, attached garage, and a raised foundation under a clear blue sky.

Black-and-white floor plan depicting a single-story home with open kitchen and living area, bedrooms and bathrooms on one side, and an attached two-car garage.

Special features in this open floor plan include:

  • Pre-painted LP smart siding
  • Asphalt shingles
  • R-21 sidewalls and R-60 attic cellulose insulation
  • Coffered and vaulted ceilings
  • Granite kitchen countertops
  • Ferche’ oak millwork stained to match the built-in custom cabinetry
  • Andersen 400 series casement windows
  • 2 bedroom, 2 full bath and 1 3/4 bath

Floor coverings are the responsibility of the homeowner. Home is designed to be moved at buyer’s expense to own lot. House includes all water, vent and waste lines extended to floor joist level for ease of hook-up. 2x6 exterior stud walls with cellulose insulation throughout. House meets or exceeds local and state building codes. All electrical conveniences installed in accordance with national electric and FHA code; circuits tested and connected to a 200 amp breaker panel. Northeast does not discriminate based upon any status protected by law or college policy. Please go to northeast.edu/nondiscrimination for details.